行業資訊
BIM正向設計,不做草圖設計,也不會取代CAD
關于BIM正向設計,網上查到的定義:所謂的BIM正向設計就是在項目從草圖設計階段至交付全部成果都是由BIM三維模型完成,不涉及任何的DWG格式的文件
實際情況其實是:一,在草圖階段,BIM是極其困難而且也沒有必要接入進來的;二,全部成果都由BIM完成而不涉及任何DWG格式文件,在目前完全做不到。
對于第一點,如果在大學里進行過5年建筑學專項學習,就會了解:建筑設計流程在草圖設計階段的主要任務,集中在分析建筑功能與場地環境的矛盾,給出空間劃分,排布房間平面,確定立面及體量等方面。
這個過程并不是從先到后逐一打勾的線性計算,而是一個在多重考量點中反復梳理的動態平衡。大量不確定性,導致草圖階段的設計成果可能在一周之內推倒重來三四次。版本之間,很可能面目全非。
這與BIM軟件建立在大工作量模型基礎上的精確定位表達,存在著根本性的沖突。更適合這種多變環境的建模軟件,是Sketchup和Rhino。如果不考慮建模,只做平面表達,那CAD也會比BIM體系中的任意一款軟件快得多。

BIMvs草圖,視覺效果相近,但效率完敗
對于第二點,BIM軟件目前無法完全拋開DWG實現出圖。主要原因有兩個:審圖標準和設計工作量。
國內的施工圖設計審圖標準,還是以二維為基礎制定的。為了能在二維圖面上表達復雜的三維空間,對構件做了大規模的簡化抽象表達。在二維圖面上抽象示意的文字與圖塊,在三維空間上卻要按照現場真實尺寸建成模型。
BIM始終存在二三維難于協調的問題:是否依照構造做法建面層、是否在平面上對實體做圖例轉換、是否將機電管線在平面上顯示成單線并抽象示意連接彎頭……
按照真實情況建模,工作量遠大于DWG
如果說BIM離不開DWG,在審圖標準上的原因還有較多客觀因素、是外部大環境制約的話,那么因設計工作量而引入DWG,更多的是主觀選擇。
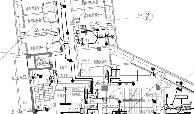
沒有DWG的BIM設計,將極大增加機電出圖工作量。
尤其以電氣專業為突出。常規的民用建筑施工圖中,從建筑,到結構,再到機電的暖水電三專業,圖紙表達是一個越來越抽象的過程。抽象,意味著出圖工作量的大幅減少。
建筑圖紙上的構件要給出形狀尺寸,電氣圖紙上的構件只有或方或園的圖例-方圓的大小與真實尺寸沒有關系。
建筑圖紙還有平立剖,電氣圖紙常常只有平面。最要命的是,只畫在平面上的導線,表達的僅僅只是位置的示意。
幾十年前形成的這種抽象表達方式,在設計生產力不發達,民用建筑形式簡單,機電設備單一的情況下,可以便捷省力地完成出圖要求。但這不適合今日各行各業生產力大發展,建筑空間日益復雜,機電設備極度豐富的大背景。

CAD的電氣出圖,只表達圖例和示意線
用DWG給出電氣設計時,只要在房間里拉幾條斜線示意燈與門邊的開關有連接即可。而在擅長精細、真實表達建筑具體情況的BIM設計中,你必須要頻繁切換視角,想辦法分別放置開關和燈具于墻面和屋頂的準確位置上。然后將導線按照真實施工情況在三維環境中對齊開關與燈具,并做好導線與它們的連接——拋開CAD直接用BIM出圖的電氣圖紙,其工作量將是DWG圖紙的幾倍。
革命不是請客吃飯。BIM作為建筑行業的一次技術革命,也注定不會在一片歡歡樂樂的愉悅氣氛中輕松實現。
就像一個剛剛大學畢業來到社會的青年一樣,BIM總會有個磕磕絆絆的適應過程。BIM需要放棄不適合它能力特長的技術方向,比如建筑草圖;也會謙讓其在技術上暫時還不能完全勝任的工作,比如DWG出圖。
更多相關信息 還可關注中鐵城際公眾號矩陣 掃一掃下方二維碼即可關注





